Informations
Client | GConcept
Localisation | Uccle
Type de projet | Appartement à rénover
M2 | 100 m2
Réalisation | Conception / Design / Modélisation / Chantier
Description
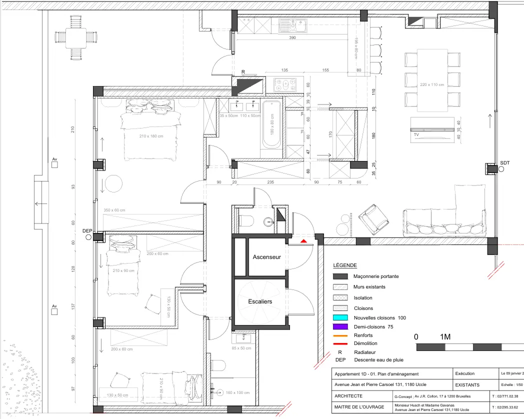
Ce projet consistait à rénover un appartement situé à Uccle, encore dans son jus, pour une famille de 3 personnes. On repart à zéro, et on redéfinis les espaces en tenant compte de la structure existante. On arrive alors à créer :
- Une belle cuisine ouverte sur un grand séjour
- 3 chambres dont une avec dressing intégré
- 2 salles d'eau : une salle de bain et une salle de douche
- une buanderie (traversante, faisant le lien entre l'entrée et la cuisine)
- Une belle entrée avec un grand vestiaire, qui intègre la porte de la buanderie
- 1 WC séparé
L'avantage ici était qu'on a pu créer tous les meubles sur-mesure, afin d'optimiser au mieux l'espace, et maximiser les possibilités de rangements.
(en attente des photos finales)
Vestiaire - Buanderie


Cuisine

Séjour

Salle de douche

Chambre









